男子相亲失败,女子让男子送她回家,被男子拒绝,网友:干得漂亮
2026-01-25 07:16:20
浅析防火门监控系统
一、防火门监控系统电气系统图

图示中给出了四种防火门监控形式:
1、一体式常开防火门(左上角)
特点:无单独的防火门监控模块,需要电源线;
2、一体式常闭防火门(右上角)
特点:无单独的防火门监控模块,无电源线;
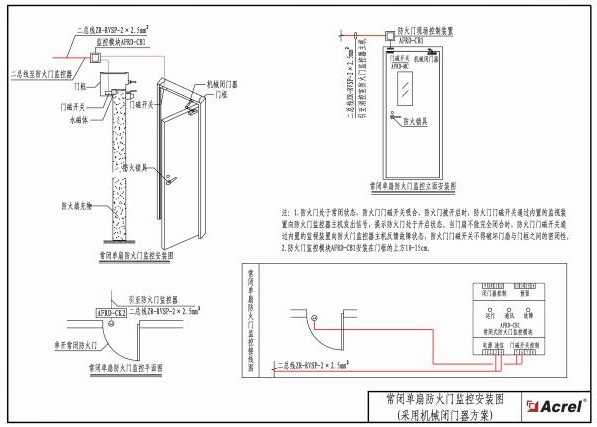
3、分体式常开防火门-闭门器(坐下角)
特点:有单独的防火门监控模块,需要电源线;
4、分体式常开防火门-电磁释放器和门磁开关(下中)
特点:有单独的防火门监控模块,需要电源线;
5、分体式常闭防火门(右下角)
特点:有单独的防火门监控模块,无电源线;
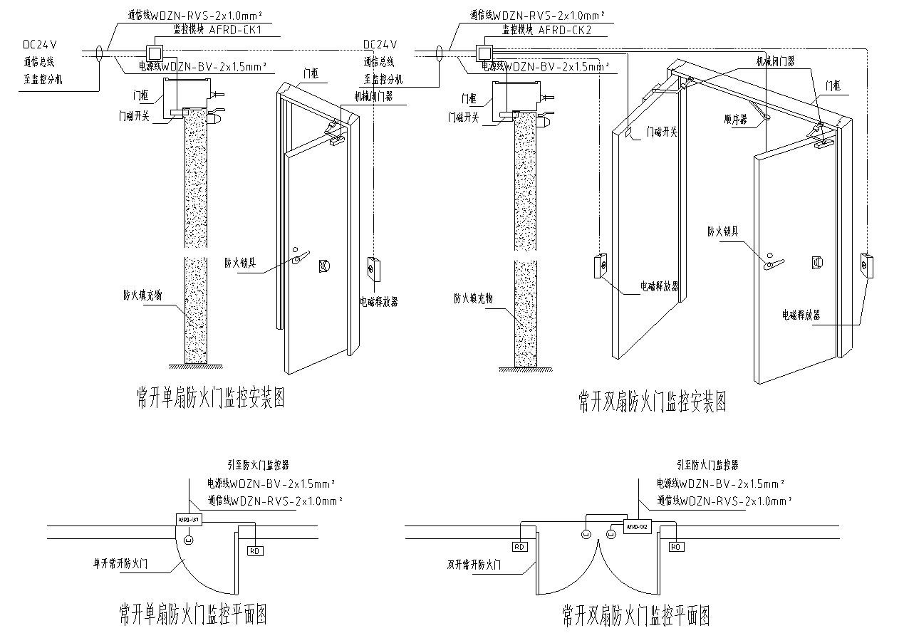
二、防护门监控系统建筑图集

1、常开防火门监控采用闭门器形式

2、常开防火门监控采用电磁释放器和门磁开关形式

3、常闭防火门监控采用一防火门监控模块和门磁开关

4、常闭防火门监控采用一体式防火门监控模块

三、防火门监控模块举例:
1、回路总线采用2×1.0-1.5mm2导线。如有电源线,可采用2×1.5mm2导线。
2、安装之前用编码器对其写入相应地址码(1-252),此编码应与工程软件中的编码相一致。
将总线L1、L2接在端子上,接线无级性。
3、编码型输入/输出接口端子图例如下图所示:

L1(端子4)、L2(端子5):接通回路总线,无极性;
24V(端子1)、GND(端子3):接24V直流电源,有极性;
24V(端子2):接24V直流电源;
输入功能:
AS(端子9)、GND(端子10):接应答(无源触点)。
连接在AS和GND上的监视设备的常闭端必须串联10KΩ终端电阻;
输出功能:
ON(端子7)、GND(端子10):接被控设备。接口启动前ON端(7)持续输出24V,见接线方式1(图3),接口启动后,ON端与GND端不再输出24V。
四、一体式门磁开关举例
1、仅用于对常闭门进行状态监测,无需电源线。
2、端子及接线
安装之前用编码器对其写入相应地址码(1-252)。回路总线采用2×1.0-1.5mm双纹线。
3、一体式门磁开关端子图例(如下图)

4、应用接线示意图:

五、一体式电动闭门器

1、一体式电动闭门器可与消防系统联网,平时常供消防DC24V电给消防联动闭门器,使防火门保持常开。
2、一体式电动闭门器火情时,断开DC24V电,防火门在联动闭门闭的作用下可平稳关闭,同时提供反饭信号给消防中控室。
2026-01-25 07:16:20
2026-01-25 07:14:06
2026-01-25 07:11:51
2026-01-25 07:09:37
2026-01-25 07:07:22
2026-01-25 07:05:08
2026-01-25 05:14:28
2026-01-25 05:12:13
2026-01-25 05:09:59
2026-01-25 05:07:45
2026-01-25 05:05:30
2026-01-25 05:03:16
2026-01-25 05:01:02
2026-01-25 04:58:47
2026-01-25 04:56:33
2026-01-25 04:54:19
2026-01-25 04:52:04
2026-01-25 04:49:50
2026-01-25 04:47:36
2026-01-25 04:45:21