红薯原产地是哪个国家什么时间(红薯原产地是什么地方)
2025-11-22 10:27:52
卫生间内开门(卫生间内开门最小尺寸)
大家好,我是冰唐葫芦,热衷于分享居家买房装房干货,欢迎大家关注我。
居家装修中,人们常常遇到卫生间门就在餐桌旁的烦恼,希望通过户型的优化设计,调整卫生间门的位置或者化解卫生间门的不雅视觉。

题主补充说到,图纸设计不好,卫生间门位于饭厅旁,希望帮忙解决一下。也可以重新设计房间的格局来改变卫生间的开门方式。
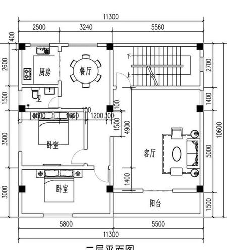
由上图可知,这是一套2房2厅1厨1卫1阳台的普通住宅,建筑面积约为130平方米。卫生间门距饭厅就一米多,距离非常近。
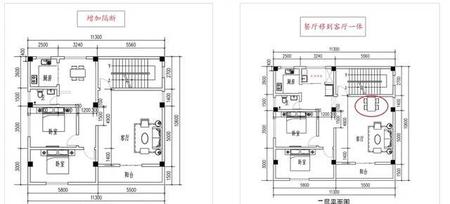
当然,如果仅仅是想解决卫生间门的问题,大家都会想到,最简单的办法就两个,一是在卫生间门口加隔断,把卫生间门“藏”起来。二是把饭桌搬到客厅北区去。改造后,如下图所示

人们通常不喜欢坐在卫生间门口吃饭,主要原因还是因为健康和卫生。
一,户型优点
1,采光优良。
户型两开间南向,三面有窗采光,开间大进深小,采光优良。

2,各功能空间方正实用。
户型整体虽然由于楼梯间的占位,形成东北缺角,但室内各功能空间方正实用,很好设计和布局家具。
3,户型功能设计比较合理。
户型干湿分区,动静分区,动线流畅,功能设计合理。
4,尺寸设计比较合理。
户型各功能区尺寸设计比较合理,开间大,空间整体宽敞舒适。

5,户型可改造性好。
户型是全框架结构,室内没有剪力墙,除柱子和梁不可拆除以外,室内墙体均可拆改。户型的可改造性好。
二,户型缺点
1,过道长,空间浪费明显。
户型独立过道长约10米,再加客厅北区浪费空间,整体浪费空间超20平米,空间浪费非常明显。

2,南卧横梁压床。
南卧床的正上方有连接东西柱子的横梁。长期横梁压床对人造成心理压力、对身体健康不利。

3,户型功能设计不齐全。
建面130平米的两居室,没有生活阳台配置,仅有单卫的设计,且单卫的实际内空面积不足3平米、无法干湿分区。户型功能设计不齐全,舒适性较差。

户型优缺点小结
由于户型为全框架结构,可改造性好,故笔者认为以上三大缺点均可通过设计得以优化改造。
三,改造方案
笔者根据餐厅位置的不同,共设计了两套方案,供题主参考。
2025-11-22 10:27:52
2025-11-22 10:25:37
2025-11-22 10:23:21
2025-11-22 10:21:06
2025-11-22 10:18:50
2025-11-22 10:16:34
2025-11-22 10:14:19
2025-11-22 10:12:03
2025-11-22 01:23:20
2025-11-22 01:21:05
2025-11-22 01:18:49
2025-11-22 01:16:33
2025-11-22 01:14:18
2025-11-22 01:12:02
2025-11-22 01:09:47
2025-11-22 01:07:31
2025-11-22 01:05:15
2025-11-22 01:03:00
2025-11-22 01:00:44
2025-11-22 00:58:28